Bilocale in vendita

Monza, Via Severino Boezio - San Rocco
€ 138.000
2 locali 2 locali
65 Mq 65 Mq
1 bagno 1 bagno

Bilocale in vendita

Monza, Via Severino Boezio - San Rocco

Descrizione annuncio

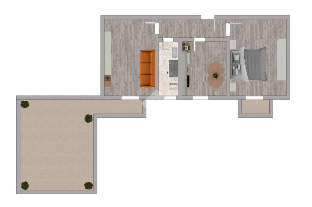
In zona San Rocco, in via tranquilla ma nelle immediate vicinanze di supermercati, mezzi pubblici e svariate attività commerciali, proponiamo in vendita appartamento di due locali con terrazzo.

L'appartamento è posto al piano rialzato ed è composto da locali ben distribuiti.

Entrando troviamo un disimpegno che divide gli ambienti.

Soggiorno con sfogo su un ampio terrazzo, cucina abitabile, camera matrimoniale con balcone che offre un ulteriore spazio esterno e bagno finestrato con doccia.

Una cantina al piano interrato ed un box singolo, compreso nel prezzo, completano la proprietà.

Libero subito.

L'appartamento rappresenta una soluzione interessante per chi cerca una residenza in una zona tranquilla, con la comodità di tutti i servizi nelle vicinanze.

Il seguente testo è solo a scopo illustrativo, può contenere errori e/o omissioni. Non costituisce alcun vincolo contrattuale.

Vuoi conoscere il VALORE REALE del tuo immobile? Affidati a noi! Contattaci allo 039.210.2492 per una valutazione GRATUITA e SENZA IMPEGNO!

Mostra tutto

Nelle vicinanze

Trasporto pubblico Trasporto pubblico
Sesto 1º Maggio F.S.
Sesto 1º Maggio F.S.
2,7 Km
Monza
Monza
2,3 Km
Sesto San Giovanni
Sesto San Giovanni
2,7 Km
MONZA, Via S.Rocco, 57 dopo Via Gentile
MONZA, Via S.Rocco, 57 dopo Via Gentile
70 m
MONZA, Via S.Rocco, 57 prima Via Gentile
MONZA, Via S.Rocco, 57 prima Via Gentile
80 m
Ricariche auto elettriche Ricariche auto elettriche
Sesto San Giovanni Pelucca | EnelX
660 m
Penny Market
1,1 Km
COLOGNO MONZESE Toti | ENELX
1,2 Km
EnelX EVA+ Q8Easy - Cinisello Balsamo
1,5 Km
Eneldrive Ananas A4
1,6 Km
Scuole Scuole
Scuola Primaria Omero
260 m
Scuola Secondaria di Primo Grado Sandro Pertini
280 m
Scuola Primaria Sant'Alessandro
320 m
Scuola Primaria Zara
820 m
Accademia Pbs
940 m
Farmacia Farmacia
Farmacia San Rocco
280 m
Farmacia Comunale n. 5
570 m
Farmacia Comunale N.8 della Pelucca
680 m
Farmacia Comunale n. 8
690 m
Farmacia Borgazzi
1,4 Km
Supermercati Supermercati
Carrefour Market
110 m
Il Gigante
1,0 Km
Primo
1,0 Km
Penny Market
1,1 Km
Esselunga di San Fruttuoso
1,8 Km
Negozi Negozi
Negozi
170 m
Saini
300 m
Il Papero Rosso
540 m
Il Forno di San Rocco
830 m
Fedeli Cashmere Outlet
980 m
Bar Bar
Da Manu e Giò
150 m
Bar della Pesa
230 m
Bar Alexander
300 m
Habanero
310 m
Circolo Marelli
530 m
Ristoranti Ristoranti
El Sherifo
130 m
O'Strit
580 m
Pizzaround
670 m
Pizza D.O.C.
720 m
Lo Scorpione
750 m
Mostra tutto

Caratteristiche

Rif.:
61135177
Piano:
Rialzato di 4
Totale piani:
4
Box:
1
Balconi:
1
Terrazzi:
1
Mostra tutto
Prezzo Prezzo
€ 138.000
Rata mutuo Rata mutuo
€ 651 / mese
Spese annue Spese annue
€ 1.800
Proponi il tuo prezzoProponi il tuo prezzo

Classe Energetica

F
F
F
F
F
F
F
F
F
EP globale non rinnovabile:
184.83 kW h/m² anno
EP globale rinnovabile:
0.00 kW h/m² anno
EP invernale del fabbricato:
EP estiva del fabbricato:
Anno di costruzione:
1962
Riscaldamento:
Centralizzato
Tipo impianto:
A radiatori
Tipo alimentazione:
Metano

Ti interessa visionare l'immobile?

Fissa un appuntamento  Fissa un appuntamento

Richiedi informazioni

Clicca su Leggi per aprire l'informativa
* Questi campi sono obbligatori

Calcola il tuo mutuo

Semplice e senza impegno
Anticipo

( % )
Mutuo

( % )

pochi semplici passi

inserisci i tuoi dati
Questionario completato
Grazie per aver richiesto un appuntamento senza impegno con un nostro Consulente del Credito e Assicurativo.

Hai inserito correttamente tutti i dati necessari e a breve riceverai una e-mail con un link da convalidare per inviare i tuoi dati.
Affiliato
Studio Monza Sud Srl
Via San Rocco, 15/A 20900 Monza (MB)

Il nostro staff


  • Alessandro Como
    Collaboratore

  • Andrea Crupi
    Affiliato

  • Greta Carrer
    Coordinatrice

  • Luciano Picuccio
    Affiliato

  • Simone Secchi
    Collaboratore
Via San Rocco, 15/A 20900 Monza (MB)
Zona: Monza Sud
Mostra su mappa
Orari: dal Lunedì al Venerdì 9.00/12.30 e 14.30 /20.30 il sabato 9.00/14.30
Affiliato
Studio Monza Sud Srl
Via San Rocco, 15/A 20900 Monza (MB)

2026 Tecnocasa Franchising S.p.A. - P. IVA 08365160152 - Via Monte Bianco 60/A 20089 Rozzano (MI). Ogni agenzia ha un proprio titolare ed è autonoma. Privacy policy | Policy utilizzo | Cookie policy